当前,"低价"已成为园区招商的常见标签。2024全国园区招商去化体量TOP100数据显示,高去化项目普遍呈现低价特征。然而,低价并不等同于高性价比。那些大幅降价的项目存在诸多问题,如周边竞争激烈导致资产转手困难、为控制成本工程质量打折,特别是那种高容积率、低毛利的散售工业上楼产品,后期产权分散致使管理混乱、产业氛围难以维持,资产长期价值存疑,这类项目更多是满足开发商短期回款需求,对企业长期发展和区域建设助力有限。
真正有性价比的项目,不仅要成本可控,更要满足企业长期发展的空间需求,具备资产增值潜力。这与产业发展趋势相符,产业发展初期一般是研发办公一体化,发展到一定阶段,头部企业会产生“功能分离、空间聚合”需求:既要在交通便利的区域布局总部核心功能,又需将规模化生产环节外迁至成本优势区域;同时,企业家对不动产的资产配置需求,也促使市场需要兼具功能复合与保值属性的产业载体。传统CBD办公园区在此趋势中显露出明显短板:成本高企、功能单一,难以匹配企业多元需求。与之形成对比的是,产业园区凭借显著的价格优势与功能灵活性,成为更务实的选择。

图:第一工园?旺山企业总部港沿吴中大道人视图

图:第一工园?旺山企业总部港吴中大道与旺山路交叉口人视图
以第一工园?旺山企业总部港为例,项目位于苏州吴中区核心板块,毗邻5A级旺山风景区,总占地347亩,1-3期从2013年运营至今,已经吸引了200多家企业入驻,其中不乏药明生物、圣苏新药等细分领域龙头。最新推出的四期新建载体于2024年12月正式开工建设,规划打造独栋(1500-2800㎡)、双拼(1000-1200㎡)、分层(560㎡-14400㎡)多种户型,总计34万m2的高标准生产、研发载体,满足企业总部办公、研发、轻生产/组装一体化需求,首批次预计于2026年建成交付,主要面向智能制造、生物医药、检测检验、新一代信息技术等产业招商。


图:第一工园?旺山企业总部港独栋厂房效果图


图:第一工园?旺山企业总部港双拼厂房效果

图:第一工园?旺山企业总部港分层厂房效果图
其以远低于苏州商办写字楼产品的价格,提供总部级昭示性形象(全玻璃幕墙+铝板外立面、独栋冠名权)与多功能复合空间,具备四大核心优势:一是便捷区位与成熟产业基础。项目地处城市交通枢纽,形成“1小时对接苏沪杭、3小时覆盖长三角主要城市”的黄金区位。所在的吴中经开区为国家级开发区,产业上下游配套完备,企业间技术交流与资源共享渠道畅通;二是稀缺、总部昭示性产品。作为区域稀缺的产权载体,项目昭示性强,有助于企业树立良好形象。产品采用轻生产研发办公一体化设计,提供最小560㎡的分割面积,满足不同规模企业的多样化需求;三是完善生活配套与产业协作场景。园区内配备公寓、食堂、健身房、咖啡店等生活设施,构建便捷生活场景。同时,打造约400㎡的产业会客厅(咖场),为入驻企业搭建资源对接与交流平台,促进产业协作;四是全周期服务体系赋能。提供涵盖基础服务、增值服务、全生命周期产投服务的“店小二式”贴身服务,精准赋能企业发展。
区位——城市枢纽,交通便捷,产业基础扎实
第一工园?旺山企业总部港坐落于国家级经开区——吴中经开区,隶属苏州市吴中区,地处苏州市域地理中心,兼具交通枢纽与产业集聚优势:
城市枢纽,区域产业基础扎实。项目1小时车程覆盖上海虹桥、无锡硕放、杭州萧山等5个国际机场,4个国际港口(如上海港、苏州港),形成“1小时对接苏沪杭、3小时覆盖长三角主要城市”的黄金区位;项目所在吴中区产业基础扎实,聚焦“3+2+N”现代产业体系,重点打造智能制造装备、新材料、生物医药“3”大主导产业,文化旅游、现代农业“2”大特色产业,人工智能、大数据与云计算、新能源、航空航天等“N”个未来产业,区域内已培育晶瑞电材、华软科技、电科院、江苏吴中、聚灿光电等多家上市企业,形成以龙头企业为引领、细分领域专精特新企业协同发展的产业生态。

交通便捷,园区运营成熟。园区毗邻5A级旺山景区,坐落于主干道吴中大道与七子山隧道交汇处,毗邻沪常高速,距离中环西线8分钟车程,15分钟直达苏州市区,10分钟到达苏州新区、市区(七子山隧道通车后);步行6分钟可至公交车站,依托轨道交通7号线可实现地铁通勤,未来随着地铁7号线旺山路站通车,市内通勤效率将进一步提升。

基于1-3期的运营,第一工园?旺山企业总部港已形成成熟的产业生态圈,目前超200家企业入驻,其中高新技术企业20家。入驻企业聚焦智能制造、生物医药、检测检验、科技创意等战略新兴领域,涵盖药明生物苏州检测(亚太领先的生物药安全性检测平台)、元德友勤(国内血液病诊断领域的标杆企业之一)、圣苏新药(中国第一家也是唯一一家专注于DMPK及PKPD技术服务的平台公司)、昌明生物科技(领先的创新型医疗器械企业)、欧康诺(专业从事半导体存储器测试系统的研发、生产和服务)、诺威特(全场景智慧新能源供应商)等细分行业优质企业。这些优质企业的聚集,不仅带来上下游产业配套的便利性,更通过技术交流、资源共享与人才流动,催生创新协同效应,为入园企业提供天然的产业对接网络与发展赋能环境。

图:第一工园?旺山企业总部港部分入园企业logo
产品——区域稀缺产权载体,适配企业轻生产、研发、总部办公一体化需求
第一工园?旺山企业总部港最新推出的四期新建载体聚焦“总部办公+研发+轻生产/组装”复合功能,具备几大亮点:
①稀缺独立产权资产,未来增值路径清晰。苏州工业用地市场近年来供应收紧,新出让地块多为30年产权,且准入门槛高,企业直接拿地难度显著增加,区域在售产业项目也愈发稀缺。第一工园?旺山企业总部港拥有50年产权的国有工业用地,土地年限高于当前主流项目。这不仅为企业提供稳定的生产经营环境,也为资产保值增值提供更长期的保障。随着区域产业不断集聚发展,此类兼具产权优势与成熟配套的项目稀缺性将进一步凸显,成为企业长期发展与资产配置的优质选择。

图:第一工园?旺山企业总部港鸟瞰图
②总部级昭示性,利于企业形象展示。项目整体设计以现代工业美学为核心,建筑外立面采用全玻璃幕墙+浅灰色铝板组合,搭配灰色金属框、金属百叶、金属雨棚等元素,兼具工业质感与总部级昭示性形象;建筑主色调为浅灰与灰色系,通过不同材质(玻璃、铝板、金属)的光影变化,提升建筑立体感与现代感;通过露台、下沉式中心庭院、沿旺山河景观界面等人性化设计,建筑与自然环境(毗邻5A级旺山风景区)形成互动,增强空间通透感与生态属性。

图:第一工园?旺山企业总部港建筑外立面


图:第一工园?旺山企业总部港人视夜景

图:第一工园?旺山企业总部港下沉广场人视

图:第一工园?旺山企业总部港沿旺山河人视
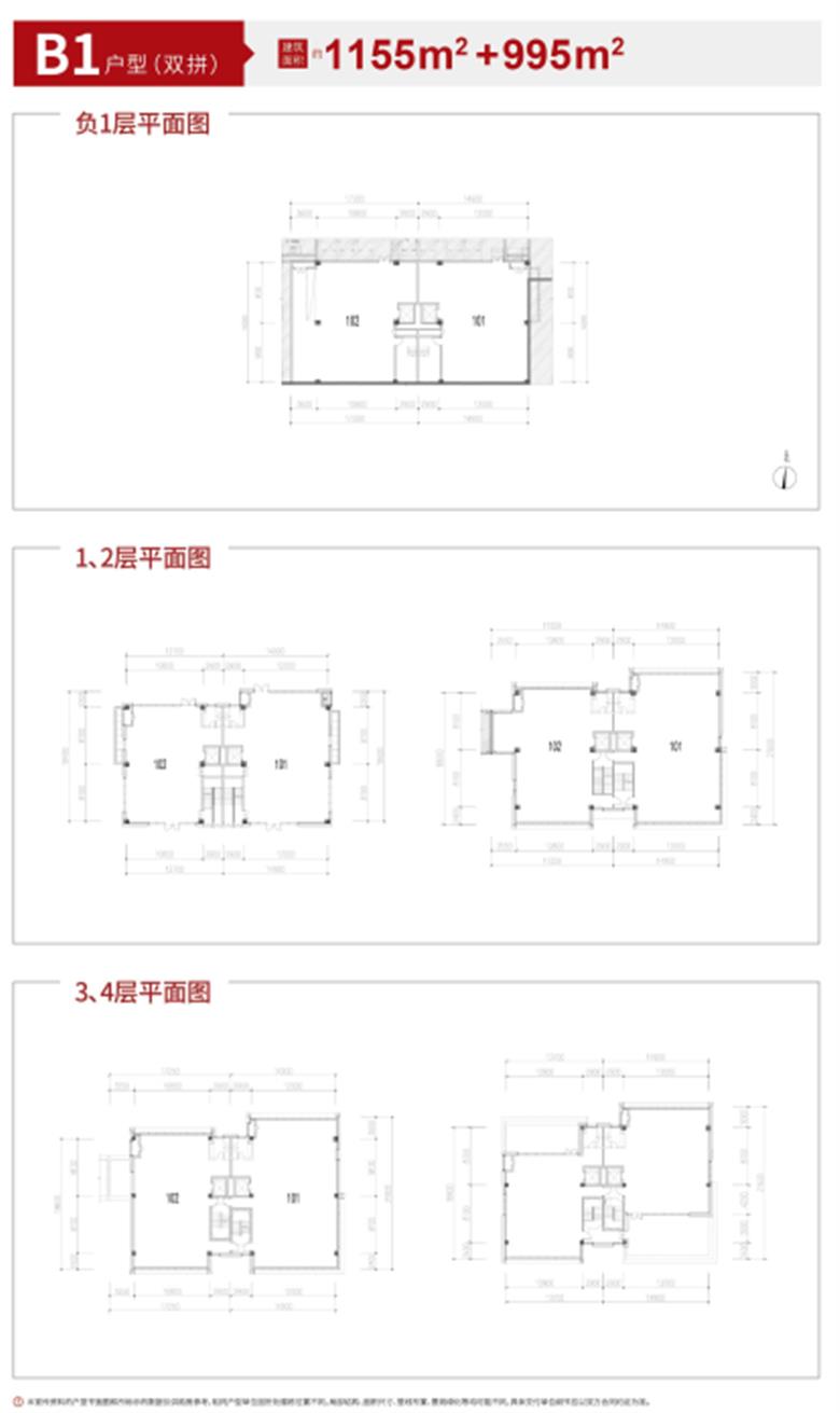
③560㎡-14400㎡灵动空间,覆盖不同规模需求。项目提供分层、双拼、独栋多种户型,最小分割面积560㎡,远低于苏州同类项目1000㎡的普遍标准:其中,分层产品包括D1/D2两种户型,单户面积560㎡起,可自由组合至1100-2500㎡整层、14400㎡整栋,地上6层,适合中小企业轻量化入驻;双拼产品包括B1(单层面积段1155㎡+995㎡)、B2两种户型(单层面积段999㎡+996㎡),地上4层、地下1层,满足中型企业空间需求;独栋产品:包括C1(单栋建面2865㎡)、C2(单栋建面1548㎡)两种户型,地上4层,地下1层,赠送地下室与露台,支持总部独栋冠名权、定制整层总裁层,适合企业总部集成办公、研发、展示等综合功能,彰显企业实力。



图:第一工园?旺山企业总部港部分户型
④空间参数适配多元功能。区别于传统纯办公载体,项目通过高空间参数设计满足多元功能需求,首层层高6.48-7.2米,分层厂房首层荷载达2T/㎡(双拼/独栋0.8T/㎡),可承载企业总部办公、研发小试、轻生产轻组装功能。同时独栋/双拼产品套内无柱,让装修设计更自由,有效提高利用率。这种设计下,企业在入驻园区初期可进行轻生产研发办公一体化运作,后期规模扩大时,也可灵活调整功能布局,剥离生产环节,保留总部核心功能。
配套——构建便捷生活与产业协作场景
从“能办公”到“好办公”再到“助发展”,第一工园?旺山企业总部港既满足企业当下的空间刚需,又通过特色配套的叠加,为长期发展搭建平台,真正实现“生产有空间、形象有展示、成长有支持”的全周期适配:
5分钟生活圈,满足员工日常生活与企业商务需求。园区内各种生活配套一应俱全,配备800间公寓,以及食堂、便利店、超市、健身房、充电站、咖啡店(瑞幸、咖场)等生活设施;规划2000㎡下沉式广场,未来将引入高端餐饮业态;园区外配套资源丰富,5公里范围内覆盖65家大型超市、3座购物中心(苏州湾中心广场、苏州佐阾·越溪购物中心、苏州SM城市广场),项目周边行政、教育、金融等服务齐全,可满足员工日常生活与企业商务需求。


图:第一工园?旺山企业总部港健身房(左)、食堂(右)
打造产业会客厅,促进企业协作。为解决产业园区内企业“物理相邻、业务疏离”的普遍问题,园区打造约400㎡的产业会客厅(咖场),为入驻企业提供资源对接与交流场所。咖场采用工业风设计,融合木质与水泥灰元素,设置开放咖啡区、露天休闲位及独立隔间。适合员工日常休憩、非正式交流,企业商务洽谈、小型会议或团队头脑风暴,满足不同场景需求。助力企业在轻松愉悦的氛围中,彼此相识、产生联结、促成合作。


图:第一工园?旺山企业总部港 咖场
服务——全周期服务体系赋能企业发展
第一工园聚焦三大维度构建服务体系,赋能企业发展:①基础服务保障。提供物业运维等一站式基础服务,解决企业落地初期的行政与运营痛点;②增值服务赋能。依托产业会客厅等载体,组织产业链对接会、技术沙龙、人才招聘会等活动,助力企业链接资源、开拓市场;③产投共赢模式。发挥吴中高科创投资本优势,根据入园企业不同发展阶段的需求,提供全生命周期的产投服务。这种“店小二式”的贴身服务、“陪跑人式”的长期跟进、“合伙人式”的深度协同,旨在与企业建立共生关系,让园区不仅是物理空间载体,更是助力企业跨越发展周期的价值共同体。


图:第一工园服务体系

政企园三方共赢的价值闭环
一直以来,亿翰提出的"价值园区"评估体系始终强调三重价值平衡,即对园区运营商有价值、对入园企业有价值、对政府有价值。第一工园?旺山企业总部港通过差异化发展,精准呼应了这三方面需求,形成政企、园企、产城协同的良性生态。对企业-满足当下需求与长期发展的优选:项目可实现“办公+研发+轻生产”一体化运营,满足企业现阶段需求;同时,地块稀缺性叠加区域产业集群升级红利,为企业资产长期增值提供保障。对政府-推动产业集聚与税收增长:项目通过产业生态构建和企业培育,提升区域产业集中度,增强地方产业竞争力;聚焦智能制造、生物医药等高附加值产业,引入优质企业,持续贡献稳定税收增长。对园区运营商-打造标杆项目与品牌价值:依托早期获取的稀缺土地,通过多期开发释放土地价值;从一期到四期,逐步树立苏州优质园区标杆,强化运营商市场竞争力,并输出成熟运营经验。


结语
十年光阴流转,第一工园?旺山企业总部港的成长轨迹与苏州吴中区的产业升级深深交织。当人们驱车穿过七子山隧道,眼前这片镶嵌在5A级景区中的现代建筑群,已很难让人联想起曾经的工业荒地。更令人感慨的是,这个从苏州古城外走出的园区模式,如今已孕育出跨越地理边界的生命力,在12座城市开花结果,我们看到的不仅是一个品牌走向全国化的布局,更是一种产业生长逻辑的验证——真正有生命力的园区模式,必然源自对区域产业基因的深刻理解与尊重。


